家づくりをする中で、子ども部屋の広さってどのくらい確保するべきか悩みますよね。
6畳は欲しいという人もいれば、床面積が足りなくて4畳すら確保できないかもっていうケースもあるのではないでしょうか?
我が家の場合は後者で、どうにか2部屋確保しました
33坪の延べ床面積で「LDK25帖」の広さを確保した結果、子ども部屋に割ける広さはそれぞれ『4.5帖』と『3.7帖』に。
狭すぎてかわいそうかな…と迷いましたが、我が家のライフスタイルや理想とする家づくりを考えたときに4帖前後あれば十分だという考えに落ち着きました。
一般的に子供部屋の広さは6帖が多いという中で、なぜ我が家は4帖前後の広さにしたのか。
コンパクトな子ども部屋にした3つの理由や実際のレイアウト図面についてまとめていきます。
4.5畳と3.7畳の子ども部屋にした3つの理由
そもそも床面積が足りずコンパクトな子ども部屋にせざるを得ない状況だったということもありますが・・・
最終的に4.5畳と3.7畳の子ども部屋にした主な理由は以下の3点です。
- リビングでの家族時間を大切にしたい
- 子ども部屋の基本的な役割は「寝室」
- 片づけ習慣が身につきやすい
リビングでの家族時間を大切にしたい
子ども部屋が狭い分リビングなど家族共有の空間で広いスペースを確保することができれば、より快適でくつろぎやすい空間にできると考えました。
同じ空間にいることで、
- 家族間での会話が増える
- 親の目が届きやすい
- 孤立しにくい
といったメリットもあります。
一方で、年齢が上がるにつれて一人になりたいと思うタイミングも出てきますよね。
そのために子ども部屋というプライベートな空間は持ちつつも、基本的にはリビングで団欒の時間を過ごせたらという思いからリビングの広さを重要視しました。
子ども部屋の基本的な役割は「寝室」
小学生になると自分の部屋を持つ子どもが増え、年齢が上がるにつれて自室で過ごす時間が増えていきます。
中高生になると自室からなかなか出てきてくれないといった時期もあったりしますよね。
一方で、くつろぐ場所として子ども部屋よりもリビングダイニングにいる子どもが実は多いという調査結果がありました。
また勉強しやすいと感じる場所についても、子ども部屋だけでなくリビングや自宅外と回答する子どもも少なくないようです。
特に小学生低学年はリビング学習は学習の習慣づけに有効とされています。
以上のことから、子ども部屋の最も大きな役割として「睡眠がしっかり取れること」が重要だと考えました。
そのため寝る場所が確保できるベッドを置ければ部屋の広さは4帖程度あれば問題ないということになりました。
片づけ習慣が身につきやすい
そして片づけ習慣が身につきやすいというメリットもあるのではと感じています。
部屋がコンパクトだと、「物を増やすとすぐ散らかる」「出しっぱなしにすると使いにくい」という状態になるため、自然と「片づけないと困る」環境になります。
そのため、「物の定位置を決める」「不要な物を手放す」などの習慣が身につきやすくなることも考えられます。
物理的な移動距離も短くて済むので、片付けのハードルも下がりそうですよね!
また上記以外にも、子ども部屋が狭くなっても洗面所やファミクロなどに十分な広さを確保したいなどの理由もありました。
どの空間に余裕のあるスペースを確保したいのかなど、優先順位をつけながら全体とのバランスを考えることがとても重要だと感じています。
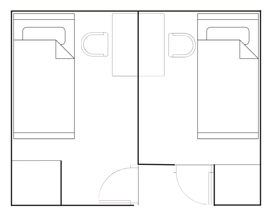
4.5畳と3.7畳の子ども部屋のレイアウト図面例
4.5畳と3.7畳の子ども部屋の図面がこちらになります。


4.5畳の部屋の方が広く見えますが、扉を開けるとほぼ通路としての役割しか果たせません。
そのため実際に使えるスペースとしてはほぼ同じ広さの3.7畳ほどということになります。
どちらの部屋にも床から天井まで大型のクローゼットが一箇所ずつ設置されています。
現状はまだ子ども部屋として利用していませんが、ベッドなどの家具を入れてみたレイアウト図面がこちらになります。


こうしてみると、ギリギリシングルのベッドと小ぶりな学習机を入れることができるような広さとなっています。
決して余裕のある広さではありませんが、最低限、「寝る」「勉強する」などの行動ができる広さとなっていることが改めて分かりますね。
まとめ
この記事では、我が家がコンパクトな子ども部屋にした3つの理由や実際のレイアウト図面についてまとめていきました。
家族の在り方について、考え方はそれぞれあるので何が正解ということはありません。
我が家の場合は家族団欒の時間を大切にしたいという思いがあったことから、子ども部屋の広さはコンパクトにする代わりにリビングをゆとりある広さにしようということになりました。











コメント